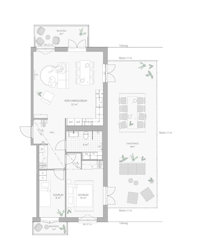
Majorsvägen - 3 RoK med två balkonger och takterrass
Unik och storslagen trerummare med 47 kvm takterrass samt två ytterligare balkonger i olika väderstreck. Högt läge med fönster i tre väderstreck! Detta är verkligen ett boende utöver det vanliga! Öppen planlösning och ett stilrent och fullt utrustat kök med diskmaskin. Snyggt och helkaklat badrum med tvättmaskin och torktumlare. Ett stort sovrum med skjutdörrsgarderob och ett mindre med garderober.
- Pris
- Såld
