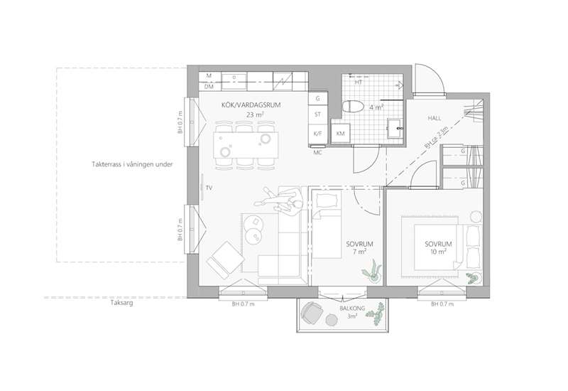
Majorsvägen - 3 RoK med balkong
Mycket yteffektiv trerummare högst upp i huset och med balkong mot Majorsgatan i härligt och ljust söderläge. Stilrent och fullt utrustat kök med diskmaskin. Snyggt och helkaklat badrum med dusch och kombimaskin. Två bra sovrum med plats för dubbelsäng i det ena sovrummet. Smart förvaring i form av garderober med skjutdörrar.
Lnr
158
Rum
3
BOAREA
55 kvm
- Pris
- 3,500,000
- Avgift
- 4 342
- Deadlines och ändringar Läs mer
Anmäl ditt intresse för Barkarby Pluss
Anmäl intresse
