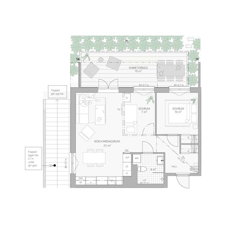
Majorsvägen - 3 RoK med terrass
Mycket yteffektiv trerummare med med en generös markterrass om 19 kvm mot gården som ramas in med härlig grönska. Stilrent och fullt utrustat kök med diskmaskin. Snyggt och helkaklat badrum med dusch och kombimaskin. Två bra sovrum med plats för dubbelsäng i det ena sovrummet. Smart förvaring i form av garderober med skjutdörrar.
Lnr
166
Rum
3
BOAREA
55 kvm
- Pris
- 2,795,000
- Avgift
- 4 259
- Deadlines och ändringar Läs mer
Anmäl ditt intresse för Barkarby Pluss
Anmäl intresse
