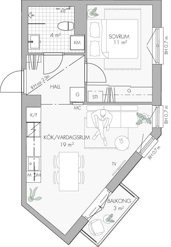
Välkommen till denna yteffektiva tvårummare med balkong. Bostaden flödar av ljus med stora fönsterpartier och utgång till balkongen med pardörrar. Smart planerat sovrum med plats för dubbelsäng, skrivbord och annan förvaring. Skjutdörrsgarderob i sovrummet. Fullt utrustat kök samt ett helkaklat badrum med dusch och kombimaskin.
Lnr
90
Rum
2
BOAREA
40 kvm
- Pris
- 2,075,000
- Avgift
- 3 479
- Deadlines och ändringar Läs mer
Anmäl ditt intresse för Barkarby Pluss
Anmäl intresse
