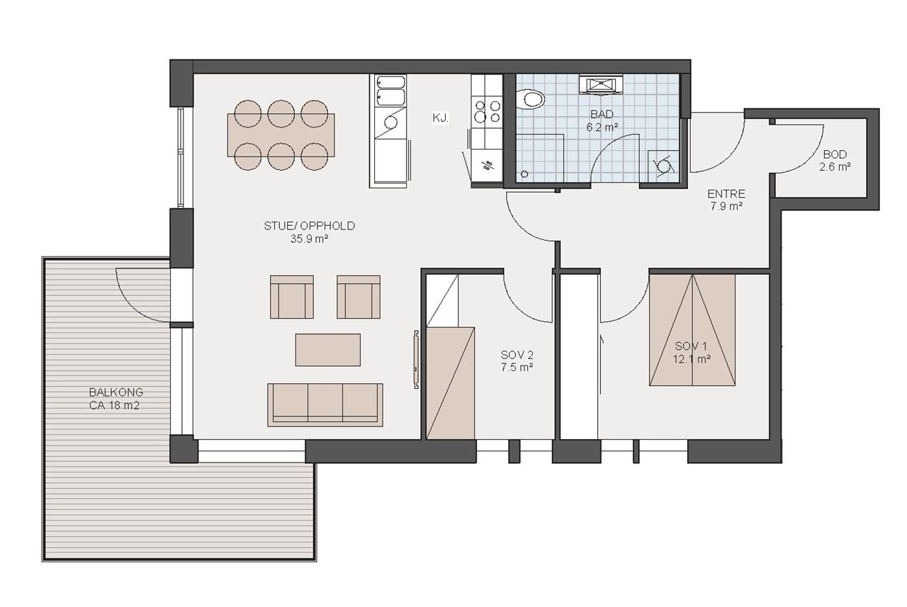
Lys hjørneleilighet med to soverom
Stor entré med inngang til praktisk bod. Stort bad med dusjhjørne og opplegg for vaskemaskin og tørketrommel. Lys hjørnestue med store vindusflater og god plass til møblering. Fin kjøkkenløsning delvis skjermet mot stue med halvhøy vegg. Plass til stort spisebord i nisje foran kjøkken. Romslig hovedsoverom med skyvedørsgarderobe. Stor hjørnebalkong med utgang fra stuen.
- Pris
- Solgt
