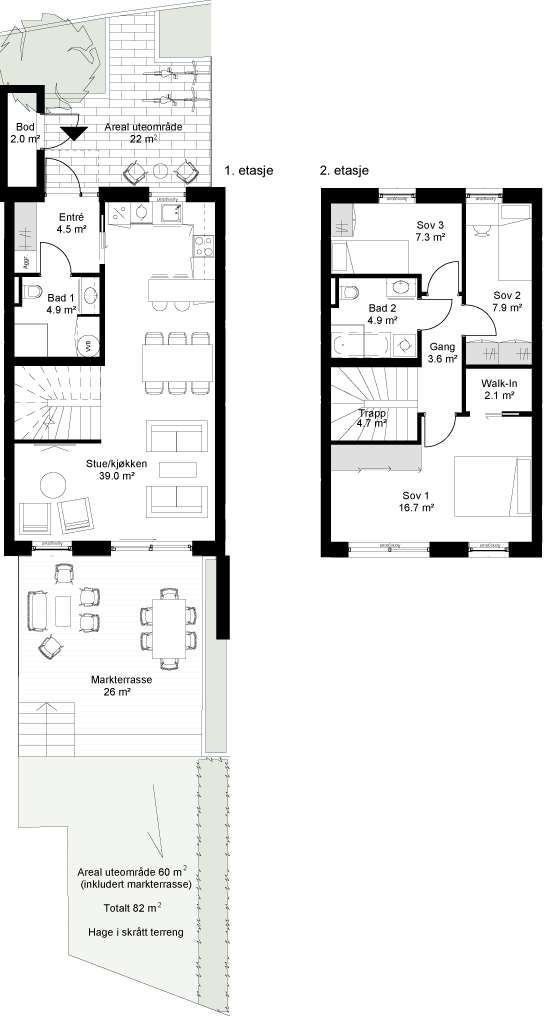
Flott rekkehus med to etasjer, markterrasse med hage og uteområde
Arkitekttegnet rekkehus i grønne omgivelser. Planløsningen er gjennomtenkt med åpen stue- og kjøkkenløsning i 1. etasje og tre romslige soverom i 2. etasje, hvor hovedsoverommet har egen walk-in-garderobe. Rekkehuset har i tillegg et bad i hver etasje, bod og romslig entré og gang. Du kan nyte en flott markterrasse med stort uteområde og egen hage.
- Pris
- Solgt
