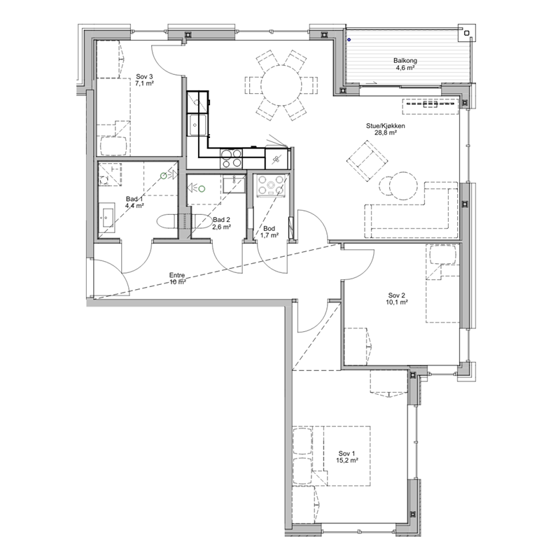
Fin og lys 4-roms leilighet
Lys og luftig leilighet med 2,55 meters takhøyde, store vinduer og hvitpigmentert en-stavs herdet tregulv. Leiligheten har en åpen stue- og kjøkkenløsning med plass til både spisegruppe og sofagruppe, samt direkte tilgang til en romslig balkong. Ved kjøp kan du kostnadsfritt velge mellom tre ulike interiørkonsepter, slik at du kan tilpasse ditt kjøkken og andre rom etter egen smak. I tillegg har du tilgang til et 375 kvm stort fellesområde med kaffebar, lounge, selskapsrom, treningssenter, møterom og gjesterom for overnattingsbesøk.
- Pris
- 8,100,000
- Omk. Les mer
- 33 511
- Pris inkl. omk.
- 8 133 511
- Månedlige felleskostnader Les mer
- 2 960
