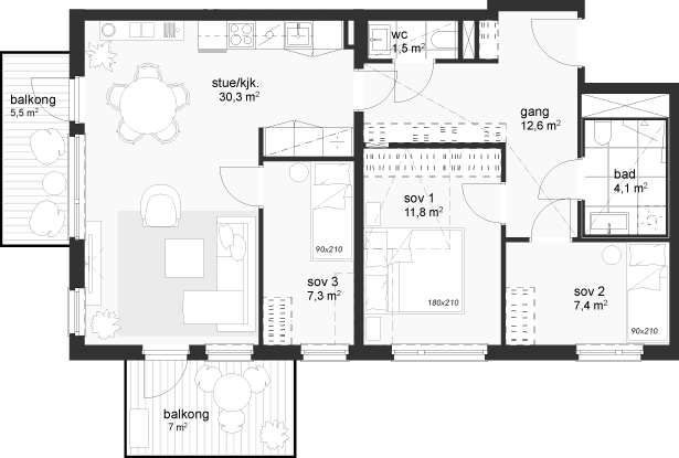
Lys og luftig 4-roms leilighet
Leiligheten bygges med lys en-stavs eikeparkett, generøs takhøyde og store vindusflater. Balansert ventilasjon sørger for godt inneklima og lave kostnader til oppvarming. Som kjøper kan du velge mellom tre ulike interiørstiler uten ekstra kostnad. Konseptene FUNKIS, JÄRVENPÄÄ og LØKKA definerer veggfarger, kjøkkenfronter og -håndtak, benkeplate og fliser på bad. Du kan lese mer om innredningsvalgene i prospektet. Leiligheten kvalifiserer til Grønt Boliglån. Ta kontakt med selger for mer informasjon.
- Pris
- 6,855,000
- Omk. Les mer
- 45 060
- Pris inkl. omk.
- 6 900 060
- Månedlige felleskostnader Les mer
- 4 117
- Frister og endringer Les mer
