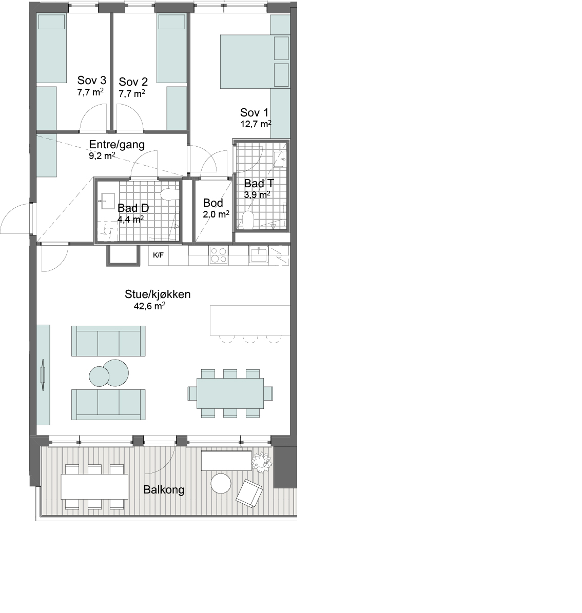
Lys og moderne 4-roms leilighet
Vi bygger med 2,60 m takhøyde, store vindusflater og lys en-stavs eikeparkett. Lavt energiforbruk og godt inneklima.
Lnr
153
Rom
4
BRA
94 kvm
P-plass
inkl.
- Pris
- Solgt
Meld interesse for å holde deg oppdatert om Skårerbyen
Meld interesse
